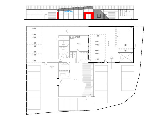
kfz-werkstatt

KFZ-Werkstatt - Witten

Projektleitung für das Büro Architekten M. & U. Schulz, Witten

Projekt:
Erstellung eines Anbaus für einen Kfz-Betrieb, um bestehende Gewerbeflächen zu erweitern und Ausstellungsflächen für Gebrauchtwagen zu schaffen.

Konzeptplanung 2010